Redbridge School Streets
School Streets at Polling Stations
Some schools in the borough will be used as polling stations for the Local Election on Thursday 7 May 2026. To allow residents to access their polling station, School Streets will not be enforced on that day at the locations listed below:
- Christchurch Primary School
- Cleveland Primary School
- Fairlop Primary School
- Fullwood Primary School
- Gearies Primary School
- Goodmayes Primary School
- Gordon Primary School, including Saints Peter and Paul’s Catholic Primary School
- Highlands Primary School
- Manford Primary School
- Newbury Park Primary School
- Oakdale Infants School
- Parkhill Junior School
- Redbridge Primary School
School Streets enforcement will resume as normal on the following school day.
School Streets
We have introduced clean air zones, known as School Streets, around some Redbridge Schools as part of our plans to deliver a healthier, safer, greener and cleaner borough.
Redbridge School Streets aim to:
- Reduce air pollution around our schools, making the air children breathe cleaner;
- Protect children from the dangers of traffic at the school gate, preventing accidents and keeping children safe;
- Encourage families to walk and cycle to school, improving health and fitness.
Redbridge School Streets prevent non-residential vehicle traffic from outside the zone from entering School Street zones and travelling past schools during school start and finish times, during term time only.
Vehicles parked within the School Streets zone can exit the School Streets zone without penalty, at any time, even during the restricted period.
Residents and business located within the zone are entitled to a free vehicle exemption allowing them to enter the area during restricted times.
Across Redbridge there are currently nineteen School Streets schemes in operation at twenty-one schools and results show they have been successful at reducing traffic at the school gate, making the area safer for children and encouraging them to walk, scoot and cycle to school.
Winter 2025 School Streets Consultation
Redbridge is now consulting on two further School Streets schemes. These are:
- Redbridge Primary School (Ridgeway Gardens Extension)
- Woodford Green Primary School (London Borough of Waltham Forest)
The consultations end at 23:59 on Sunday 21st December 2025.
To let us know your views on these proposals, please visit https://engage.redbridge.gov.uk/.
New School Streets
The Council consulted a number of potential School Street schemes in response to resident and school requests. A number of these have progressed to implementation, however, the following School Street schemes are on hold due to concerns highlighted through the consultation and design stages. These schemes will be subject to further analysis on the consultation feedback and scheme design whilst they are on hold:
- Aldborough Primary School
- Caterham High School
- Coppice Primary School
- Forest Academy
- Oaks Park High School
- Roding Primary School
The Council has decided not to progress a School Street scheme at Seven Kings Primary School on Thorold Road due to issues highlighted during the consultation and design stages.
Existing School Streets
Aldersbrook Primary School
The School Streets prohibition means that during term time, vehicular traffic (motorcycles, cars, vans and lorries) will be prohibited from entering Harpenden Road, including Albury Mews and Ingatestone Road (see below plan) at school start and finish times.
This is because the entrances to the school are located on Harpenden Road and Ingatestone Road.
The times of the prohibition are between:
- 7.45am and 9.15am
- 2.30pm and 3.30pm

Avanti Court Primary School
The School Streets prohibition means that during term time, vehicular traffic (motorcycles, cars, vans and lorries) will be prohibited from entering the following roads.
This is because the entrances to the school are located on these roads.
- the service road to the rear of Carlton Court/Heybridge Drive
- Carlton Drive approach to Avanti Court Primary School (see below plan) at school start and finish times.
The times of the prohibition are between:
- 7.40am and 8.45am
- 2.40pm and 3.30pm

Chadwell Heath Academy
The School Streets prohibition means that during term time, vehicular traffic (motorcycles, cars, vans, and lorries) will be prohibited from entering the following roads which are highlighted in yellow on the map below:
- Christie Gardens
- Priestly Gardens (part)
These roads have been chosen for one or more of the following reasons:
- The entrances/exits to the school are located on the roads.
- To enable all driving to take place in a forward gear for road safety reasons.
- To avoid creating a cul-de-sac where parents will park, idle and manoeuvre whilst children are passing by on their way to and from school.
The times of the prohibition are between:
Morning 08.30 – 09:15
Afternoon 14.45 – 15:30

Christchurch Primary School
The School Streets prohibition means that during term time, vehicular traffic (motorcycles, cars, vans, and lorries) will be prohibited from entering the following roads which are highlighted in red on the map below:
- Balfour Road (part)
- Melbourne Road (part)
- Wellesley Road (part)
- Christchurch Road (part)
These roads have been chosen for one or more of the following reasons:
- The entrances/exits to the school are located on the roads.
- To enable all driving to take place in a forward gear for road safety reasons.
- To avoid creating a cul-de-sac where parents will park, idle and manoeuvre whilst children are passing by on their way to and from school.
The times of the prohibition are between:
Morning: 8am and 9am
Afternoon: 2.15pm and 3.45pm

Cleveland Road Primary School
The School Streets prohibition means that during term time, vehicular traffic (motorcycles, cars, vans, and lorries) will be prohibited from entering the following roads which are highlighted in red on the map below:
- Rutland Road (part)
- Dudley Road (part)
- Cleveland Road (part)
These roads have been chosen for one or more of the following reasons:
- The entrances/exits to the school are located on the roads.
- To enable all driving to take place in a forward gear for road safety reasons.
- To avoid creating a cul-de-sac where parents will park, idle and manoeuvre whilst children are passing by on their way to and from school.
The times of the prohibition are between:
Morning: 8am and 9.15am
Afternoon: 2.45pm and 3.45pm

Fairlop Primary School
Fairlop Primary School is located in Colvin Gardens, Ilford, IG6 2LH.
The vehicle prohibition operates on Colvin Gardens between the junction with Greenwood Gardens and its junction with Tomswood Hill. This is because the entrance to the school is located on Colvin Gardens.
The prohibition timings are between:
- 8.45am and 9.20am
- 3pm and 3.50pm

Farnham Green Primary School
The School Streets prohibition means that during term time, vehicular traffic (motorcycles, cars, vans, and lorries) will be prohibited from entering the following roads;
- Royal Close
- Regent Gardens
- Douglas Road (part)
- Erin Close
These roads have been chosen for one or more of the following reasons:
- The entrances/exits to the school are located on the roads.
- To enable all driving to take place in a forward gear for road safety reasons.
- To avoid creating a cul-de-sac where parents will park, idle and manoeuvre whilst children are passing by on their way to and from school.
The timings of the prohibition are between;
- Morning: 8.15am and 9.15am
- Afternoon: 2.30pm and 4pm


Fullwood Primary School
The School Streets prohibition means that during term time, vehicular traffic (motorcycles, cars, vans and lorries) will be prohibited from entering Burford Close (see below plan) at school start and finish times.
This is because the entrance to the school is located on this road.
The times of the prohibition are between:
- 8.30am and 9.15am
- 2.50pm and 3.45pm

Gearies Primary School
The School Streets prohibition means that during term time, vehicular traffic (motorcycles, cars, vans, and lorries) will be prohibited from entering the following roads:
- Waremead Road – between the entrance to Redbridge Institute and the junction with Gants Hill Crescent.
- Gants Hill Crescent – between the junction with Shere Road and the exit from Redbridge Institute.
- Sunnymede Drive – between the junction with Kenwood Gardens and the junction with Gants Hill Crescent.
These roads have been chosen for one or more of the following reasons:
- The entrances/exits to the school are located on the roads.
- To enable all driving to take place in a forward gear for road safety reasons.
- To avoid creating a cul-de-sac where parents will park, idle and manoeuvre whilst children are passing by on their way to and from school.
The times of the prohibition are:
- Morning: 8am and 9.15am
- Afternoon: 2.30pm – 4.00pm

Goodmayes Primary School
The School Streets prohibition means that during term time, vehicular traffic (motorcycles, cars, vans, and lorries) will be prohibited from entering the following roads which are highlighted in yellow on the map below:
- Castleton Road (part)
- Un-named one-way road between Castleton Road and Kinfauns Road
These roads have been chosen for one or more of the following reasons:
- The entrances/exits to the school are located on the roads.
- To enable all driving to take place in a forward gear for road safety reasons.
- To avoid creating a cul-de-sac where parents will park, idle and manoeuvre whilst children are passing by on their way to and from school.
The times of the prohibition are between:
Morning 08.00 – 09:30
Afternoon 15.00 – 16:00

Highlands Primary School
The School Streets prohibition means that during term time, vehicular traffic (motorcycles, cars, vans, and lorries) will be prohibited from entering the following roads;
- Highlands Gardens - between the junction with Wanstead Park Road and the junction with Stanhope Gardens
- Lennox Gardens
This is because the entrances to the school are located on Highlands Gardens and Stanhope Gardens.
The times of the prohibition are between;
- Morning: 8.15am and 9.15am
- Afternoon: 2.30pm and 3.45pm

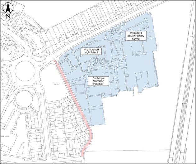
King Solomon High School / Wohl Ilford Jewish Primary School / Happy Orkids
The School Streets prohibition means that during term time, vehicular traffic (motorcycles, cars, vans, and lorries) will be prohibited from entering the following roads which are highlighted in yellow on the map below:
· Starch House Lane
These roads have been chosen for one or more of the following reasons:
· The entrances/exits to the school are located on the roads.
· To enable all driving to take place in a forward gear for road safety reasons.
· To avoid creating a cul-de-sac where parents will park, idle and manoeuvre whilst children are passing by on their way to and from school.
The times of the prohibition are between:
Morning 07:45 – 09:00
Afternoon 15:00 – 16:00

Manford Primary School
The School Streets prohibition means that during term time, vehicular traffic (motorcycles, cars, vans, and lorries) will be prohibited from entering the following roads:
- Arrowsmith Road – between the junction with Parkes Road and the junction with Tufter Road
- Arrowsmith Close
- Arrowsmith Path
- Holt Way – between the junction with Arrowsmith Road and the junction with Burrow Road
This is because:
- The entrance to the school, and access to Arrowsmith Close, is located on Arrowsmith Road;
- It is wished to avoid Arrowsmith Path and Holt Road becoming cul-de-sacs. That would lead to congestion, parental parking and manoeuvring taking place there, whilst pupils walked and scooted to/from school.
The times of the prohibition are between;
- Morning: 8.15am and 9.15am
- Afternoon: 2.15pm and 3.45pm

Mossford Green Primary School
The School Streets prohibition means that during term time, vehicular traffic (motorcycles, cars, vans, and lorries) will be prohibited from entering the following roads which are highlighted in yellow on the map below:
- Fairlop Road (part)
- Waterloo Road
- Sydney Road
These roads have been chosen for one or more of the following reasons:
- The entrances/exits to the school are located on the roads.
- To enable all driving to take place in a forward gear for road safety reasons.
- To avoid creating a cul-de-sac where parents will park, idle and manoeuvre whilst children are passing by on their way to and from school.
The times of the prohibition are between:
Morning 08.00 – 09:15
Afternoon 14.30 – 16:00

Newbury Park Primary School
The School Streets prohibition means that during term time, vehicular traffic (motorcycles, cars, vans, and lorries) will be prohibited from entering the following roads which are highlighted in red on the map below:
- Perrymans Farm Road (part)
These roads have been chosen for one or more of the following reasons:
- The entrances/exits to the school are located on the roads.
- To enable all driving to take place in a forward gear for road safety reasons.
- To avoid creating a cul-de-sac where parents will park, idle and manoeuvre whilst children are passing by on their way to and from school.
The times of the prohibition are between:
Morning: 8am and 9.15am
Afternoon: 2.30pm and 4pm

Nightingale Primary School
The School Streets prohibition means that during term time, vehicular traffic (motorcycles, cars, vans, and lorries) will be prohibited from entering the following roads which are highlighted in yellow on the map below:
- Ashbourne Avenue
- South View Drive (part)
These roads have been chosen for one or more of the following reasons:
- The entrances/exits to the school are located on the roads.
- To enable all driving to take place in a forward gear for road safety reasons.
- To avoid creating a cul-de-sac where parents will park, idle and manoeuvre whilst children are passing by on their way to and from school.
The times of the prohibition are between:
Morning 08.30 – 09:15
Afternoon 15.15 – 16:00

Oakdale Infants and Junior Schools
The School Streets prohibition means that during term time, vehicular traffic (motorcycles, cars, vans, and lorries) will be prohibited from entering the following roads which are highlighted in red on the map below:
- Woodville Road (part)
- Oakdale Road
- Ashford Road (part)
- Granville Road
These roads have been chosen for one or more of the following reasons:
- The entrances/exits to the school are located on the roads.
- To enable all driving to take place in a forward gear for road safety reasons.
- To avoid creating a cul-de-sac where parents will park, idle and manoeuvre whilst children are passing by on their way to and from school.
The times of the prohibition are between:
Morning: 8.15am and 9.10am
Afternoon: 2.35pm and 3.40pm

Our Lady of Lourdes R.C. Primary School
Our Lady of Lourdes R.C. Primary School
The School Streets prohibition means that during term time, vehicular traffic (motorcycles, cars, vans, and lorries) will be prohibited from entering the following roads;
- Chestnut Drive
- Highstone Avenue
This is because the entrances to the school are located on Chestnut Drive and Highstone Avenue.
The times of the prohibition are between;
- Morning: 8.15am and 9.15am
- Afternoon: 2.30pm and 3.45pm

Parkhill Infants' and Junior School
The School Streets prohibition means that during term time, vehicular traffic (motorcycles, cars, vans, and lorries) will be prohibited from entering the following roads which are highlighted in yellow on the map below:
- Abbotswood Gardens (part)
- Lord Avenue (part)
- Stradbroke Grove (part)
- Werneth Hall Road
These roads have been chosen for one or more of the following reasons:
- The entrances/exits to the school are located on the roads.
- To enable all driving to take place in a forward gear for road safety reasons.
- To avoid creating a cul-de-sac where parents will park, idle and manoeuvre whilst children are passing by on their way to and from school.
The times of the prohibition are between:
Morning 08.15 – 09:30
Afternoon 15.00 – 16:15

Redbridge Alternative Provision
The School Streets prohibition means that during term time, vehicular traffic (motorcycles, cars, vans, and lorries) will be prohibited from entering the following roads which are highlighted in yellow on the map below:
· Starch House Lane
These roads have been chosen for one or more of the following reasons:
· The entrances/exits to the school are located on the roads.
· To enable all driving to take place in a forward gear for road safety reasons.
· To avoid creating a cul-de-sac where parents will park, idle and manoeuvre whilst children are passing by on their way to and from school.
The times of the prohibition are between:
Morning 07:45 – 09:00
Afternoon 15:00 – 16:00

Redbridge Primary School
The School Streets prohibition means that during term time, vehicular traffic (motorcycles, cars, vans, and lorries) will be prohibited from entering the following roads:
- College Gardens
- Highcliffe Gardens
- Grangeway Gardens
These roads have been chosen for one or more of the following reasons:
- The entrances/exits to the school are located on the roads.
- To enable all driving to take place in a forward gear for road safety reasons.
- To avoid creating a cul-de-sac where parents will park, idle and manoeuvre whilst children are passing by on their way to and from school.
The times of the prohibition are between:
- Morning: 8.15am and 9.15am
- Afternoon: 2.30pm and 4pm

St Aidan's Catholic Primary Academy
The School Streets prohibition means that during term time, vehicular traffic (motorcycles, cars, vans, and lorries) will be prohibited from entering the following roads which are highlighted in yellow on the map below:
- Bradford Road
- Leeds Road
- Friars Close
These roads have been chosen for one or more of the following reasons:
- The entrances/exits to the school are located on the roads.
- To enable all driving to take place in a forward gear for road safety reasons.
- To avoid creating a cul-de-sac where parents will park, idle and manoeuvre whilst children are passing by on their way to and from school.
The times of the prohibition are between:
Morning 08.15 – 09:00
Afternoon 15.00 – 16:00

St. Augustine's Catholic Primary School
The School Streets prohibition means that during term time, vehicular traffic (motorcycles, cars, vans, and lorries) will be prohibited from entering the following roads:
- Loudoun Avenue
- Veronique Gardens
These roads have been chosen for one or more of the following reasons:
- The entrances/exits to the school are located on the roads.
- To enable all driving to take place in a forward gear for road safety reasons.
- To avoid creating a cul-de-sac where parents will park, idle and manoeuvre whilst children are passing by on their way to and from school.
The times of the prohibition are between:
- Morning: 8am and 9.15am
- Afternoon: 2.30pm and 3.45pm

St. Bede's Catholic Primary School and Nursery
The School Streets prohibition means that during term time, vehicular traffic (motorcycles, cars, vans, and lorries) will be prohibited from entering the following roads which are highlighted in yellow on the map below:
· Canon Avenue
· Somerville Road (part)
These roads have been chosen for one or more of the following reasons:
- The entrances/exits to the school are located on the roads.
- To enable all driving to take place in a forward gear for road safety reasons.
- To avoid creating a cul-de-sac where parents will park, idle and manoeuvre whilst children are passing by on their way to and from school.
The times of the prohibition are between:
Morning 07:45 – 09:15
Afternoon 14:30 – 16:45

Saints Peter and Paul's Catholic Primary School and Gordon Primary School
Saints Peter and Paul's Catholic Primary School is located in Gordon Road, Ilford, IG1 1SA.
Gordon Primary School is located in Golfe Road, Ilford, IG1 1SU.
The prohibition means that during term time, vehicular traffic (motorcycles, cars, vans and lorries) will be prohibited from driving along the following roads. This is because the entrances to the schools is located on Gordon Road and Golfe Road.
- Gordon Road, between the junctions with Green Lane and Golfe Road
- Golfe Road, between the junctions with Gordon Road and South Park Road
- Winchester Road, between the junctions with Park Road and Gordon Road
- Littlemoor Road, between the junctions with Cavenham Gardens and Golfe Road
The prohibition timings are between:
- 8.30am and 9.15am
- 2.45pm and 3.45pm

Seven Kings School Secondary Campus - Charter Avenue
The School Streets prohibition means that during term time, vehicular traffic (motorcycles, cars, vans, and lorries) will be prohibited from entering the following roads:
- Charter Avenue
This road has been chosen as one of the entrances/exits to the school is located on the road.
The times of the prohibition are between:
- Morning: 8am and 9am
- Afternoon: 2.30pm and 4.15pm

South Park Primary School
The School Streets prohibition means that during term time, vehicular traffic (motorcycles, cars, vans, and lorries) will be prohibited from entering the following roads which are highlighted in yellow on the map below:
- Esher Road (part)
- Guildford Road
- Holmwood Road
- Morrab Gardens
- Water Lane (part)
These roads have been chosen for one or more of the following reasons:
- The entrances/exits to the school are located on the roads.
- To enable all driving to take place in a forward gear for road safety reasons.
- To avoid creating a cul-de-sac where parents will park, idle and manoeuvre whilst children are passing by on their way to and from school.
The times of the prohibition are between:
Morning 08.00 – 09:15
Afternoon 14.30 – 15:45

Uphall Primary School
The School Streets prohibition means that during term time, vehicular traffic (motorcycles, cars, vans, and lorries) will be prohibited from entering the following roads which are highlighted in red on the map below:
- Uphall Road (part)
- Wingate Road
- Khartoum Road
- Hunter Road
These roads have been chosen for one or more of the following reasons:
- The entrances/exits to the school are located on the roads.
- To enable all driving to take place in a forward gear for road safety reasons.
- To avoid creating a cul-de-sac where parents will park, idle and manoeuvre whilst children are passing by on their way to and from school.
The times of the prohibition are between:
Morning: 8am and 9.15am
Afternoon: 2.30pm and 4pm

Wanstead Church School
The School Streets prohibition means that during term time, vehicular traffic (motorcycles, cars, vans and lorries) will be prohibited from entering Church Path and Fitzgerald Road (see below plan) at school start and finish times.
This is because the entrance to the school is located on Church Path and it is wished to avoid Fitzgerald Road becoming a cul-de-sac. That would lead to congestion, parental parking and manoeuvring taking place there, whilst pupils walked and scooted to/from school.
The times of the prohibition are between:
- 8.15am and 9.00am
- 2.45pm and 3.30pm

Wells Primary School
The School Streets prohibition means that during term time, vehicular traffic (motorcycles, cars, vans, and lorries) will be prohibited from entering the following roads which are highlighted in yellow on the map below:
- Aldeburgh Place
These roads have been chosen for one or more of the following reasons:
- The entrances/exits to the school are located on the roads.
- To enable all driving to take place in a forward gear for road safety reasons.
- To avoid creating a cul-de-sac where parents will park, idle and manoeuvre whilst children are passing by on their way to and from school.
The times of the prohibition are between:
Morning 07.45 – 09:00
Afternoon 14.15 – 15:30

Exemptions
Residents and businesses that are located within, or have their property vehicle access located within Redbridge School Street zone can apply for a free vehicle exemption from the Council. See FAQs for further details of exemptions.
Electric or hybrid electric vehicles are not exempt from Redbridge School Street zones as the aim of the programme is to reduce all traffic at the school gates, preventing accidents, and to encourage more children to walk and cycle to school.
The Council aims to grant Exemptions within 10 working days. However, at times of high demand this may not be possible. Applicants must wait until they receive written confirmation from the Council that an exemption has been granted. Until you receive that, you should use the street outside the prohibited timings should you require access.
Enforcement
School Streets zones are identified with signs and enforced using Traffic Enforcement Cameras.
Penalty charge notices will be issued for any vehicle that unlawfully enters the School Streets zone. The penalty charge is £160. A 50% discount is applied if payment is made within 14 days reducing the charge to £80.
Contact
For more information about Redbridge School Streets please see the below FAQs. You can email the team at schoolstreets@redbridge.gov.uk or write to School Streets Team, 2nd Floor Front, Lynton House, 255-259 High Road, Ilford, IG1 1NY.
Frequently asked questions (FAQs)
What is a School Street?
A School Street is where non-residential motor vehicles from outside the School Street zone are restricted from entering the designated zone and travelling past school entrances during the schools' start and finish times. School Streets operate during term time only. Traffic signs at the entrance to the School Street zone will inform drivers of the time that the restrictions will operate. Redbridge already has numerous School Street zones in place across the borough that have proved successful at making the school journeys safer and healthier. They are popular with residents, parents, children and schools. Further evidence demonstrating the effectiveness of School Streets can be found on the School Streets website.
Why is this scheme being run?
School Streets aim to:
- Improve air quality near schools which has positive health benefits for children. Exposure to poor air quality is now acknowledged as being a cause of death in children.
- Reduce congestion and the risk of accidents to make streets safer
- Reduce traffic on the road and improve traffic flows at school drop off and pick-up times
- Make it safer for school children to cross the road with fewer cars parked or waiting and obstructing visibility
- Create a healthier street environment
- Make it easier for local residents who drive to enter and exit their street
- Encourage families to walk, scoot and cycle to school. In 2019/20, one in four children in Redbridge were finishing primary school obese.
We always carry out evaluation and monitoring of the School Street schemes and impacts to assess if any changes are needed to improve the operation of the zone.
Early results from schemes currently in place in Redbridge show that traffic at the school gates has fallen substantially and positive feedback has been received from participating schools, parents, children and residents.
What does a School Street mean for me?
If you live within the restricted part of a School Street, then you will need to apply for a free vehicle exemption for your vehicles. This will enable you to continue to drive to and from your property without receiving a penalty charge. Business with vehicles based within the restricted area may also be able to apply for an exemption.
If you live or have a business outside of the restricted School Street, then you will not be able to drive through the zone when the restricted times are in operation. You will not be able to apply for a vehicle exemption.
Vehicles can exit the zone at any time as the restriction only applies to vehicles entering the zone.
To be exempt you will need to live in the School Streets zone on the maps shown above.
How has the Council consulted on School Streets?
All schemes are consulted on before proceeding. The Council has written to residents within proposed restricted areas and nearby streets.
Consultations are available on the consultation pages on the Redbridge website, allowing all residents and non-residents to provide the Council with their views, comments, support and objections.
A decision on whether to proceed or not with the scheme has been made by the Council taking into account the consultation response and other evidence. This decision has been publicised to members of the public in writing and through the Council website.
Won’t this scheme just push more traffic to other roads?
The aim is that parents and children who currently travel by car will consider changing the way that they travel to school, switching from unnecessary car trips to active and sustainable travel. The Council is working closely with each school to promote active and sustainable travel through encouraging walking, cycling, and scooting, and use of public transport.
A report by Edinburgh Napier University reviewing School Streets in the UK and Europe concluded that there is “Medium strength evidence that in almost all cases the total number of motor vehicles across school [streets] closures and neighbouring streets reduces”.
How is the success of a School Street measured?
Each participating school is consulted to understand the impact of the scheme at the school gate, perceptions of safety and changes in travel behaviour.
Pollution will be measured by real-time pollution monitors at selected locations.
Road safety statistics are produced and assessed.
Travel behaviour of children and school staff to and from school is measured annually as part of monitoring the School Travel Plan.
How are School Streets enforced and how much could I be fined?
School Streets zones are identified with advanced signage, signs and enforced using Traffic Enforcement Cameras located on the approach to and at entry points of the zones.
Penalty charge notices shall be issued for any vehicle that unlawfully enters the School Streets zone.
The penalty charge is £160. A 50% discount is applied if payment is made within 14 days reducing the penalty charge to £80.
Am I entitled to an exemption?
Residents and businesses that are located or have their property vehicle access located within the Redbridge School Street can apply for a free vehicle exemption from the Council. This will allow you to enter and travel through the School Street zone during the restricted times, without having a penalty notice charge
Electric or hybrid electric vehicles are not exempt from the Redbridge school street zones as the aim is to reduce all traffic at the school gates to create a healthier street and to encourage more children and families to walk and cycle to school.
Any vehicle can leave the scheme at any time, as the restrictions are only on entry to the zone.
To be exempt you will need to live in the School Streets zone on the maps above.
To apply for a free exemption please complete the online exemption form.
How much will it cost me for an exemption?
Exemptions are free. If you are eligible for an exemption you will not be charged.
Are School Streets enforced over the weekend, bank holidays and during school half term?
The School Street zones are enforced on weekdays during school term-time only.
School Streets are not enforced at weekends, during school holidays, or bank holidays.
Will there be a grace period?
Where new School Streets are introduced there will be a short grace period where any drivers passing through the school street or infringing the restrictions during the restricted times will receive a warning letter instead of a penalty notice. This will help raise awareness of the scheme and enable drivers to get used to the changes before penalty charge notices are issued.
What if a child needs to be transported to school in a vehicle for safeguarding and welfare reasons?
Arrangements are in place at each school to ensure that those children having specific travel needs e.g. disabilities or Special Educational Needs, are still able to be safely transported by their parents or carers to school.
Please email schoolstreets@redbridge.gov.uk or write to School Streets Team, 2nd Floor Front, Lynton House, 255-259 High Road, Ilford, IG1 1NY to request such an exemption.
The school will be consulted on these requests.
I have a Blue Badge, am I exempted from the School Streets restriction?
If you live within the zone you shall be eligible for an exemption and should apply for a free exemption to avoid a penalty charge notice.
Blue badge drivers living outside the School Street are not automatically exempted from School Streets restrictions.
There may be grounds for blue badge holders to appeal a penalty charge notice, provided they can evidence that there was no suitable alternative to entering a School Street at a restricted time.
I have daily health and/or social care visits. How will they be impacted?
Please contact the School Streets Team to discuss your specific requirements, as each case needs to be considered on an individual basis.
Please email the schoolstreets@redbridge.gov.uk or write to School Streets Team, 2nd Floor Front, Lynton House, 255-259 High Road, Ilford, IG1 1NY.
What about the emergency services?
Any vehicle being used for police, ambulance or fire brigade purposes in an emergency is exempt from School Streets enforcement.
No physical barriers are used on our School Streets and so Emergency Services movement is not restricted when responding to calls.
How do people get to and from work?
Once an exemption has been granted residents living within the School Streets are free to access and leave their property at any time.
There is no restriction on vehicles leaving the zone during the restricted times, just restrictions on entering the zone.
Residents and businesses outside the School Street zone will need to make a short detour around the School Street zone to complete their commute. Avoiding the School Street at the restricted times will help reduce the impacts and risks to children associated with road safety and poor air quality.
How do businesses/ trades from outside the area access the affected streets to make deliveries and service properties?
Businesses and trades routinely deliver, service addresses and access roads that have traffic restrictions in place every day, by adapting their routes, delivery plans and service times accordingly. This results in minimum disruption to customers, with School Streets becoming part of this standard operational practice. This has not been an issue at the existing School Streets.
Where issued with a penalty charge notice, delivery and service companies can successfully appeal this by providing proof of making a genuine delivery/visit within a School Street zone.
There is no restriction on delivery vehicles exiting the School Streets zone during operating times. The restrictions are just upon entering the zone.
What about people who travel by taxi or private hire vehicle?
Taxi or private hire companies can successfully appeal a penalty charge notice by providing proof of collecting or dropping-off a passenger within a School Street during restricted times.
What about visitors?
School Streets are only enforced upon entry into the restricted area. Therefore, visitors will not be allowed to enter the restricted area during the times that School Streets are in operation. If they do, their will receive a penalty charge notice.
However, visitors’ vehicles can exit the restricted area, without penalty and so the restrictions will not prevent visitors from leaving the address during this time.
What camera data is held by the Council from a School Street?
The School Streets traffic enforcement cameras are operated by Redbridge Council. They are only in operation i.e. recording, on weekdays during term time and during the times advised in the Traffic Management Order and as advised on the on-street signage.
The cameras cannot and are not used for general surveillance. They are fixed and focused on a specific spot on the street to record any vehicle making a potential contravention and the associated signage. Cameras only capture the information required to issue a penalty charge notice.
Pictures are taken of the rear of the vehicle, so the driver cannot be identified.
Once the camera records a potential infringement, the automatic system checks the number plate against the list of exempted vehicles. If the vehicle registration appears on the list, then the video clip is deleted. If it doesn't appear on the exemption list, then the system saves a 10-15 second video clip of the event. That video clip is then manually reviewed by a Council Officer who will determine whether they believe a contravention has taken place. If they believe that a contravention has not taken place, then the video clip is discarded, and no further action taken. If they decide that a contravention has taken place, then a penalty charge notice is issued.
Any video clips used to support the issue of a moving penalty charge notice is kept for two years, in line with Redbridge Council Data Retention Policy. At the end of that period they are deleted, unless the case is still subject to ongoing action.
Are School Streets just a money-making exercise?
School streets aim to improve conditions for children attending school, creating a healthier and safer street at the start and end of the school day. If the number of vehicles travelling through the restricted zone (and the number of penalty charge notices issued) does not reduce in these zones then it will not have achieved the desired outcome and changes would be considered. We have added additional temporary warning signs to new tranche of school streets to highlight the enforcement area to reduce the risk of drivers accidentally entering the zone. Vehicles must pass three statutory signs and two temporary signs to receive a penalty charge notice.
Where does the money go from the fines (penalty charge notice's)?
Any surplus income generated and spent by all local authorities from on-street charging and other on and off-street enforcement activities such as School Streets is governed by Section 55 of the Road Traffic Regulations Act 1984.
In the event of any surplus income this is redirected into the following areas for the benefit of Redbridge residents:
- meeting costs incurred in the provision or operation of, or of facilities for, public passenger transport services
- the purposes of a highway or road improvement projects, including implementation of the school street roll out
- meeting costs incurred in respect of the maintenance of roads maintained at the public expense
- the purposes of environmental improvement
- the implementation of the London transport strategy
Can the School Streets zones be widened in other Schools Streets areas to include more roads?
The Council is always open to considering the expansion of our School Streets Programme. The programme is being introduced by a Traffic Management Order which can be adjusted at any time. We are continuously monitoring the School Streets Programme to deliver the best outcomes for our residents.
How can I request a School Street at my local school or the extension of an existing scheme to my street?
If you would like the council to consider your school for a School Street or for your street to be included within an existing scheme, email schoolstreets@redbridge.gov.uk or write to School Streets Team, 2nd Floor Front, Lynton House, 255-259 High Road, Ilford, IG1 1NY.